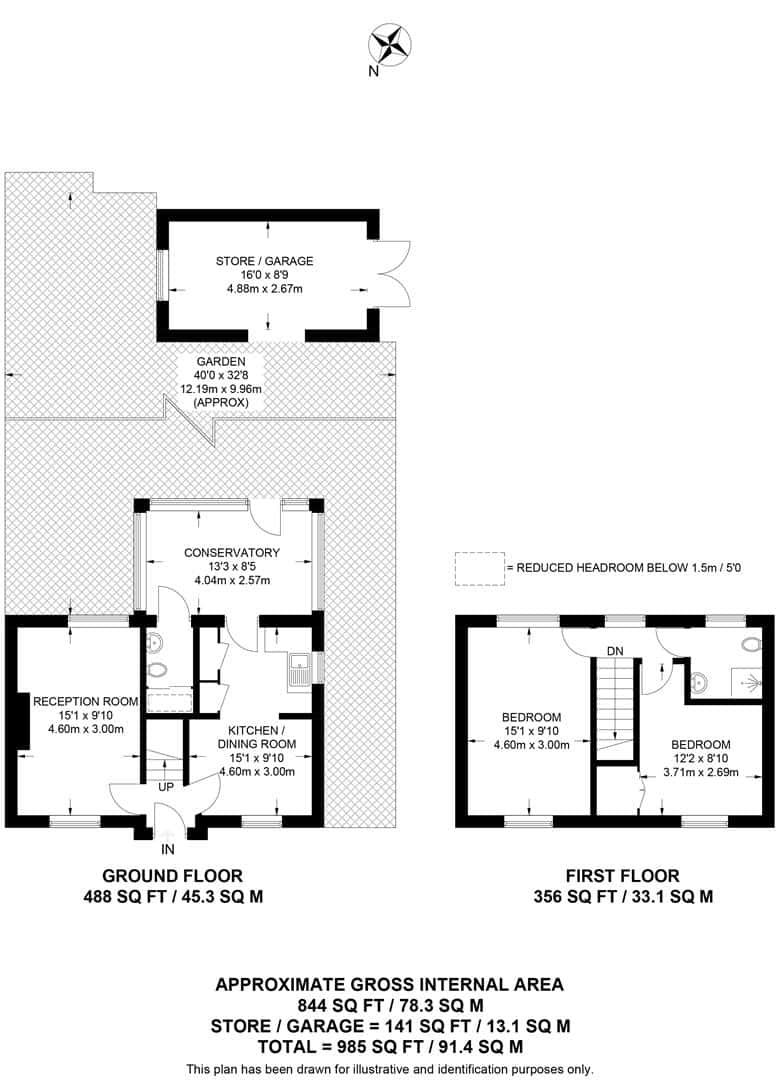
Description

Viewings will commence as of 1st May 2026. A two-bedroom semi-detached property set on a good-sized plot, offering an excellent opportunity for modernisation and improvement. The house provides clear potential throughout and would suit buyers looking to add value and personalise a home to their own specification. The accommodation includes a ground-floor WC and a first-floor shower room, providing practical convenience across both levels. Externally, the property benefits from a south-westerly facing rear garden, ideal for afternoon and evening sun, along with generous outdoor space overall. A solid opportunity for those seeking a project with strong potential in a well-proportioned setting.

For further information, call us on 0118 960 1000 to find out more.

Do you like what you see?

Call us on 0118 960 1000 to find out more, or choose one of the options below:

Request a callback Book a viewing

Similar properties in this area

Alfred Street, Reading, RG1

Alfred Street, Reading, RG1

£270,000 (Guide Price)

View property
Joseph Huntley Walk, Reading RG1 Sold STC

Joseph Huntley Walk, Reading RG1

£365,000

View property
Conisboro Avenue, Caversham, RG4

Conisboro Avenue, Caversham, RG4

£780,000 (Guide Price)

View property